Спален: 4
Этажей: 2
Ландшафт
Лесной
Гараж
Квартира для персонала
СПА
Приточно вытяжная вентиляция и кондиционирование
Умный дом
газ
Магистральный
Канализация
Центральная
Водоснабжение
Центральное
Электричество
есть
Информация об объекте
Авторский проект архитектурной студии VForm. Состоит из основного дома (374 кв.м), банного комплекса (172 кв.м) и гаража на 3 м/м с блоком персонала (99 кв.м).
В доме: 4 спальни, гостиная с дровяным камином, столовая с выходом на застекленную отапливаемую веранду, модная кухня с тайником, постирочная и котельная. В банном комплексе: полноценная кухня с гостиной и камином, дровяная баня, с/у и душевая, крытая терраса с газовым грилем и подогреваемый уличный бассейн. Особенности домовладения: совершенно новый дом, стильный авторский интерьер, дорогие отделочные материалы (много натурального камня), панорамное остекление, система “умный дом”, приточно-вытяжная вентиляция и разнообразные датчики (в том числе, детекторы протечек и задымления).Редкий по наполнению продукт: строили для себя с упором на качество и мировые бренды. 

Основной дом. 1 этаж: Холл (12,1), гардеробная (5), гостиная (36), столовая (22,6), кухня (25,3), остекленная веранда (37,1), гостевая спальня (21,9), с/у (3,3), постирочная (6,6), котельная (6,6).
Основной дом. 2 этаж: Мастер-спальня (23,1) с ванной комнатой (12,8), гардеробной (15) и балконом (33,4). Спальня №1 (20,3) с ванной комнатой (8,5), гардеробной (7,7) и балконом (16,1). Спальня №2 (23,9) с ванной комнатой (5,9). Лестничный холл (5,3).
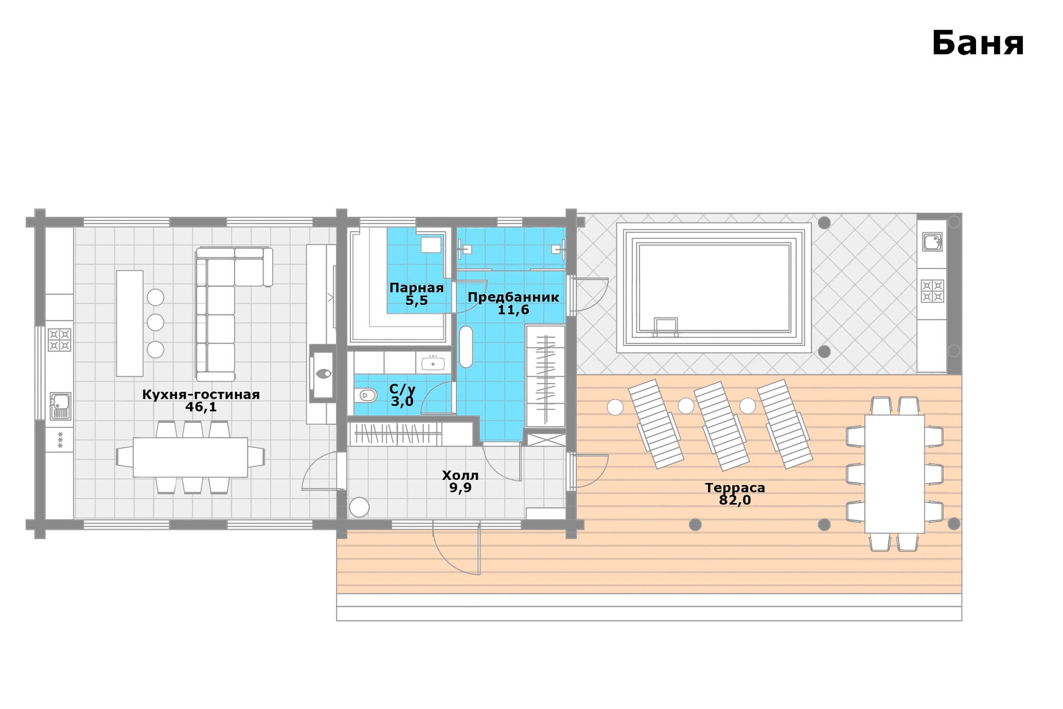
Банный комплекс: Холл (10), терраса с бассейном (82), кухня-гостиная (46,1), предбанник (11,6), парная (5,5), с/у (3).
Живописный участок с вековыми соснами и черникой. Высажено большое количество зрелых растений, установлена система автополива. Все дорожки подогреваются, в том числе и площадка для автомобилей перед домом.
М Е Б Е Л Ь И Т Е Х Н И К А
Мебель Poliform, Minotti, Royal Botania Зеркало Calligaris Кухни Valcucine, Leicht Техника Miele, Kuppersbusch, Smeg Матрасы Treca Жалюзи Nature Deco
О С В Е Щ Е Н И Е
Фасадные светильники Guzzini, Deltalight Spix M Декоративный свет Terzani, Flos, Bocci, Baxter, Henge, Contardi Технический свет Arkoslight Розетки и выключатели JUNG Мебель Poliform, Minotti, Royal Botania Зеркало Calligaris Кухни Valcucine, Leicht Техника Miele, Kuppersbusch, Smeg Матрасы Treca Жалюзи Nature Deco
Получите PDF презентацию
Состояние:
С мебелью
Год постройки:
2025
Поселок:
Населенный пункт:

ИНФРАСТРУКТУРА ПОСЕЛКА

Видеонаблюдение
КПП
Лес
Огороженная территория
Охрана
Служба Сервиса

Пользуясь нашим сайтом, вы соглашаетесь с тем, что мы используем cookies 🍪

Окей